Bought with Great Island Realty, LLC
$485,000
$485,000
For more information regarding the value of a property, please contact us for a free consultation.
4 Beds
1 Bath
1,770 SqFt
SOLD DATE : 11/07/2025
Key Details
Sold Price $485,000
Property Type Residential
Sub Type Single Family Residence
Listing Status Sold
Square Footage 1,770 sqft
MLS Listing ID 1637861
Sold Date 11/07/25
Style Raised Ranch
Bedrooms 4
Full Baths 1
HOA Y/N No
Abv Grd Liv Area 900
Year Built 1975
Annual Tax Amount $2,086
Tax Year 2025
Lot Size 0.500 Acres
Acres 0.5
Property Sub-Type Single Family Residence
Source Maine Listings
Land Area 1770
Property Description
Welcome to this inviting 4-bedroom, 1-bathroom raised ranch-style home, ideally situated just minutes from the highway for easy commuting and access to all that coastal Maine has to offer. Nestled in a peaceful neighborhood in Wells, this property offers the perfect blend of comfort, convenience, and outdoor enjoyment.
Step inside to find a bright and spacious eat-in kitchen, perfect for casual family meals or entertaining guests. The home's layout is both functional and flexible, with ample room for living and working from home. The four bedrooms offer plenty of space for family, guests, or a home office.
Outside, enjoy your morning coffee or evening relaxation on the side deck, or gather with friends around the beautiful backyard firepit, surrounded by mature trees and a sense of privacy.
Whether you're looking for a full-time residence, seasonal getaway, or investment opportunity, this well-maintained raised ranch offers great value in a prime location—just a short drive to beaches, restaurants, shopping, and local attractions.
Don't miss your chance to own a slice of Southern Maine charm—schedule your private showing today!
Location
State ME
County York
Zoning RA
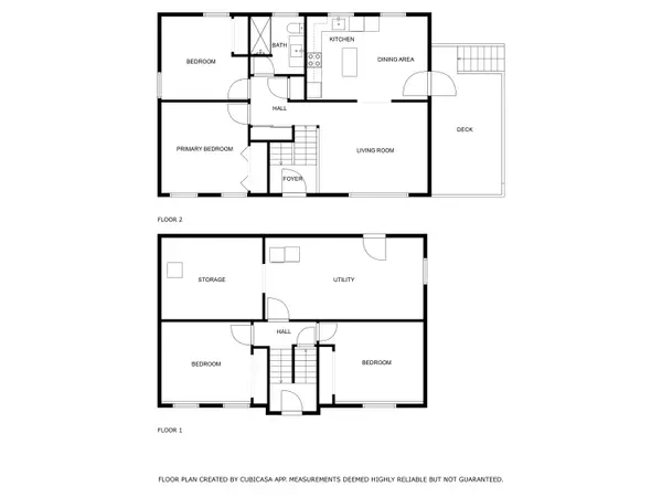
Rooms
Basement Bulkhead, Daylight, Finished, Full
Primary Bedroom Level First
Master Bedroom First
Bedroom 2 Basement
Bedroom 3 Basement
Living Room First
Dining Room First
Interior
Interior Features 1st Floor Bedroom, Storage
Heating Zoned, Hot Water, Baseboard
Cooling None
Flooring Tile, Carpet
Fireplace No
Appliance Washer, Refrigerator, Microwave, Electric Range, Dryer, Dishwasher
Exterior
Parking Features 1 - 4 Spaces, Paved
Utilities Available 1
View Y/N No
Roof Type Shingle
Street Surface Paved
Garage No
Building
Lot Description Well Landscaped, Cul-De-Sac, Level, Near Shopping, Near Turnpike/Interstate, Neighborhood, Near Railroad
Sewer Private Sewer
Water Private
Architectural Style Raised Ranch
Structure Type Vinyl Siding,Wood Frame
Others
Energy Description Oil
Read Less Info
Want to know what your home might be worth? Contact us for a FREE valuation!

Our team is ready to help you sell your home for the highest possible price ASAP








