REQUEST A TOUR If you would like to see this home without being there in person, select the "Virtual Tour" option and your agent will contact you to discuss available opportunities.
In-PersonVirtual Tour

Listed by Amnet Realty
$199,000
16 Acres Lot
UPDATED:
Key Details
Property Type Land
Listing Status Active
MLS Listing ID 1596994
HOA Y/N No
Annual Tax Amount $1
Tax Year 2024
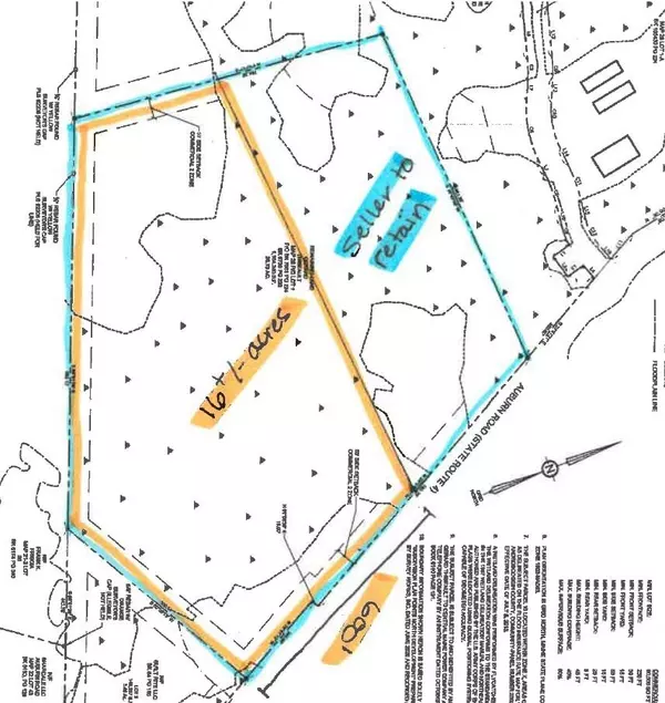
Lot Size 16.000 Acres
Acres 16.0
Source Maine Listings
Property Description
Prime investment opportunity! This roughly 16 acre parcel on Route 4 in Turner, Maine, is a gem for investors and business owners. With 600 feet of road frontage, it's perfectly positioned for high visibility. Thousands of cars pass by daily, making it a hotspot for potential customers. As development along Route 4 booms, opportunities like this are rare. Don't miss out—seize your chance to be part of Turner's thriving Route 4 commercial scene. Contact us now to learn more!
Location
State ME
County Androscoggin
Zoning Commercial II
Exterior
Parking Features No Driveway
View Y/N No
Street Surface Paved
Building
Lot Description Open, Level, Right of Way, Near Shopping, Near Town
Sewer None
Water None
Read Less Info





